Rarely available, the 2nd floor of 415 Jackson Street is the premier creative office opportunity in Jackson Square.

Built in 1853, 415 Jackson served as the Ghirardelli headquarters and factory from 1855-1894.

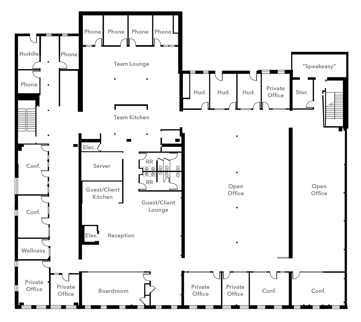
Second Floor Features

  • ±20,121 RSF
  • Turnkey full-floor with elevator identity
  • Quintessential brick and timber construction with soaring ceiling heights
  • High-end finishes throughout
  • Extensive window line and numerous skylights
  • One boardroom, seven conference rooms, five huddle rooms, six phone rooms, one wellness room, and ample open space with room for 120+ workstations
  • Two kitchens: one team kitchen and one guest/client kitchen
  • Dramatic reception and lounge ideal for hosting guests and clients
  • “Speakeasy bar”
  • Operable windows and HVAC

Floor Plan

Second Floor

Availabile Space

±20,121 RSF

TOTAL AVAILABLE

LOW $90s

IG ASKING

AUG 2026

AVAILABLE

Join the vibrant and historic Jackson Square district with upscale boutiques, restaurants, and art galleries

Location

  • Short walking distance to well-known restaurants, including Cotogna, Quince, Bix, Kokkari, as well as the private club, The Battery
  • Quick access to the amenities-rich FiDi, Chinatown, and North Beach
  • Surrounded by high-end retailers including Ralph Lauren, Anine Bing, Isabel Marant, Paul Smith, Shinola, Thom Browne and Zimmerman